開催終了
木の温もりに包まれた2棟のコンセプト住宅「建物見学販売会」
- 開催日時
- 2025年10月25日(土)~11月3日(月)
- 開催エリア
- 横浜市

『ゆめが丘』エリアに誕生した
木の温もりが暮らしをやさしく包む
2棟のコンセプト住宅

イベント概要
- 開催日付:2025年10月25日(土)~11月3日(月)
- 開催時間:10:00~17:00
- 見学方法:カレンダーよりご予約ください
- 開催場所:横浜市泉区和泉町
物件のご紹介
- 交 通:相鉄いづみ野線「ゆめが丘」駅バス6分「いづみ台」停歩9分
横浜市営地下鉄ブルーライン「下飯田」駅バス4分「いずみ台」停歩9分
小田急江ノ島線「湘南台」駅徒歩32分 - 仕 様:高断熱・省エネ設備住宅
- 付 属:全室網戸・LED照明器具付、カーテン・カーテンレール付、外構工事込
- 完 成:令和7年11月末完成予定
- 取引態様:売主(仲介手数料なし)
1号棟
- 販売価格:3,980万円(税込)
- 敷地面積:100.74㎡(30.47坪)
- 建物面積:85.29㎡(25.80坪)
- 間 取:2LDK(3LDKに変更能)+パントリー+WIC×2
- 建確番号:第2024SBC-確03534H号
9.5帖の居室はライフスタイルに合わせて間仕切り可能。今も未来も快適に暮らせる住まい。可愛らしい木目調の建具と真鍮の照明が彩る、温もりあふれる住空間。南向きバルコニーで陽だまりを感じながら、心地よい毎日を
↓ カウンタータイプのキッチンは、リビング・ダイニングと一体化することで、家族とのコミュニケーションが取りやすく、調理や配膳、片付けがスムーズになります。仕切りがないため空間が広く開放的に感じられ、生活空間全体を見渡せることでお子様を見守る安心感も得られます



↓ 石目調の色合いのキッチンカラーは、清潔感があり高級感と万能さを兼ね備え、どんなインテリアにも溶け込みやすいカラーです


↓ 主寝室には分割して収納できる大容量ウォークインクローゼットがあり、ご夫婦の収納がそれぞれできて便利です

↓ 4.5帖の外水栓付き広々バルコニーは、お子様やワンちゃんと水遊びをしたり、アウトドア気分で簡単バーベキューをしたり、家族の布団が一気に干せたり、色々な使い道で楽しめます


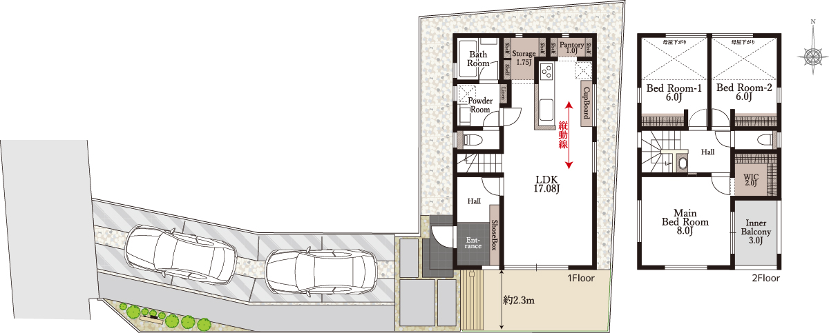
2号棟
- 販売価格:4,480万円(税込)
- 敷地面積:148.69㎡(44.97坪)
- 建物面積:99.36㎡(30.55坪)
- 間 取:3LDK+パントリー+WIC+納戸
- 建確番号:第2024SBC-確03539H号
17帖超のLDKと全居室6帖以上で、家族がゆったりと集える広々設計。急な雨でも安心のインナーバルコニーとスムーズに片づけられる充実の収納。ガーデニングや子どもの遊び場にも使える庭先で、毎日がもっと楽しく
↓ 17帖超のLDKからキッチンへの縦動線は、動線の短縮や、コミュニケーションのしやすさ、視界が抜けることにより空間に広さを感じられるなどプラス面があります


↓ キッチンに併設したパントリーは買いだめや災害時の備蓄に便利。また収納力が高まりキッチンが整理され、すっきりしたキッチンを保てて作業効率もアップします

↓ LDKと浴室・洗面の横にある収納スペースは、ファミリークローゼットとして、多目的パントリーとして、ユーティリティスペースとして、ワンちゃん・ネコちゃんなどペット用品の収納場所としても便利です

↓ 2階主寝室は8帖のスペース。主寝室からは2帖のウォークインクローゼットと、3畳のインナーバルコニーへつながります

↓ バルコニーの壁は一定の高さがあり、バルコニーの壁は高さがあり、寝室のプライバシーが保てます。また屋根付きのインナーバルコニーのため、急な雨の日も洗濯物が安心です


※ページ内で使用している画像と色合いや設置家具のデザインなどは実際と異なる場合がございます。現況と異なる場合は現況優先といたします
WEB予約はこちら
お電話でのご予約はこちら
FREE DIAL:0120-374-558
受付時間 AM 8:30 ~ PM 6:00 | 定休日 水曜



